清研理工科技園展廳
發布時間:2023-02-17瀏覽人數:
項目類型:智慧園區展示中心
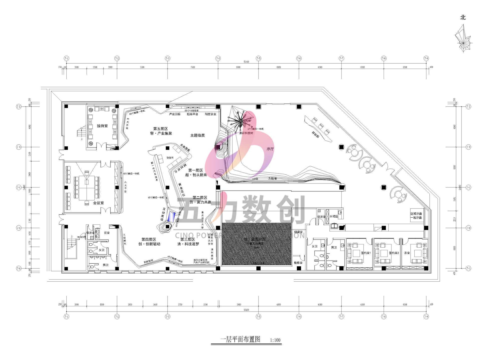
項目介紹:清研理工科技園展廳布展了繪.藍圖畢現、起.智從新來、勢.得天獨厚、擎.產業集聚四個展區區域,分別展示了園區的總體規劃戰略布局、清研體系概況和發展歷程、幾大產業成果和展望,并運用數字沙盤、弧幕、大屏、互動多媒體等多媒體高科技展項賦予展廳科技感、未來感和智慧感,致力于打造中國制造2025標桿智慧園區,吸引優質企業入駐,助力運營者招商引資,展望未來。
![]() |
![]() |
![]() |
![]() |
![]() |
上一篇:重慶南川規劃展覽館
下一篇:悅來智慧島南廳展示中心







